ỨNG DỤNG:
Được dùng để vận chuyển các loại thực phẩm, thức uống... trong các nhà hàng, khách sạn, quán karaoke hoặc trong các bếp ăn công nghiệp có từ 02 tầng trở lên
MỤC ĐÍCH:
Tăng khả năng phục vụ cho việc vận chuyển thực phẩm từ quầy bếp lên các tầng cao một cách nhanh chóng, nâng cao hiệu suất bán hàng, giảm bớt sức lao động, giảm số người phục vụ.
Thang máy tải thực phẩm
Thang máy tải thực phẩm được thiết kế từ 02 đến 03 ngăn chứa tiện dụng với mẫu mã đẹp. Cabin được làm bằng inox bóng sáng sạch sẽ, dễ dàng vệ sinh đảm bảo an toàn vệ sinh thực phẩm.
Thang máy tải thực phẩm
Cabin 03 ngăn chứa Cabin 02 ngăn chứa
I. THÔNG SỐ KỸ THUẬT THANG MÁY TẢI THỰC PHẨM:
- Tải trọng : 50kg, 100kg, 150kg, 200kg,.. 300kg
- Tốc độ : 16m/p, 24m/p...45m/p
- Số điểm dừng : Từ 02 stops -- 10 stops
- Hệ điều khiển : PLC Mitsubishi ( japan)
- Máy kéo : Mitsubishi ( thailand), sicor (italy)
- Điều khiển động lực: Biến tần Mitsubishi- (Japan), biến tần Fuji ( Japan).
- Hiển thị vị trí và chiều chạy : ma trận điểm
- Cabin : Inox 304 sọc nhuyễn
- Cửa : 02 cánh mở lên xuống, hoặc kéo lên
- Dừng tầng : Chuông báo dừng tầng
- Rail : Chuyên dụng thang máy
- Nguồn điện : 03 phase 380VAC hoặc 01 phase 220VAC
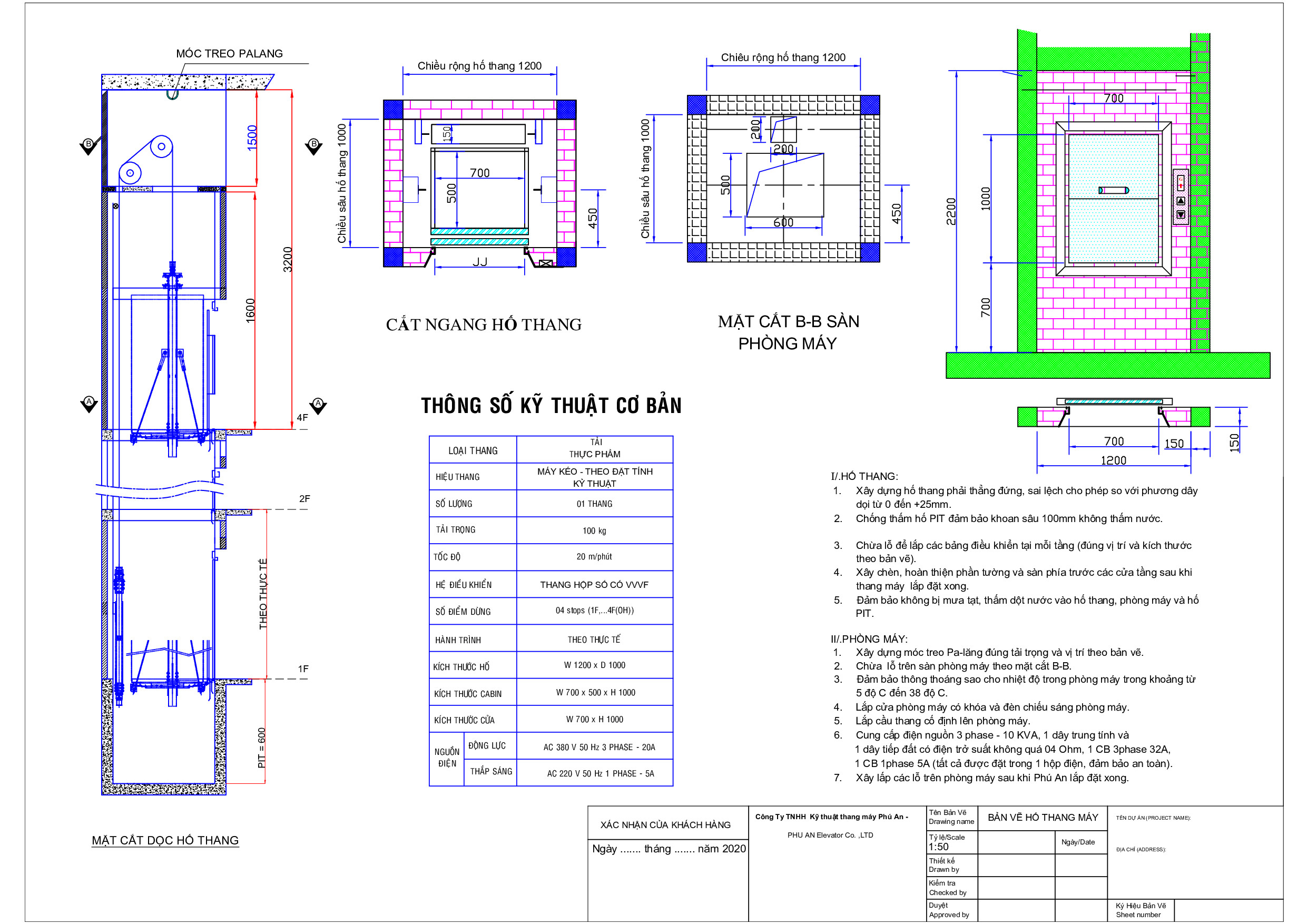
II. THIẾT KẾ HỐ THANG TẢI THỰC PHẨM:
Mẫu hố thang máy tải thực phẩm 100kg, 04 điểm dừng:
* Đễ có thêm thông tin chi tiết về thiết kế hố thang và báo giá thang máy tải thực phẩm vui lòng liên hệ :
- Hotline: 0902 703 008
- Email : thangmayphuan@gmail.com



